Banesë në shitje – Bresje, Fushë Kosovë
- Me marrëveshje!
Përshkrimi
Banesë në shitje – Bresje, Fushë Kosovë
Çmimi: me marrëveshje!
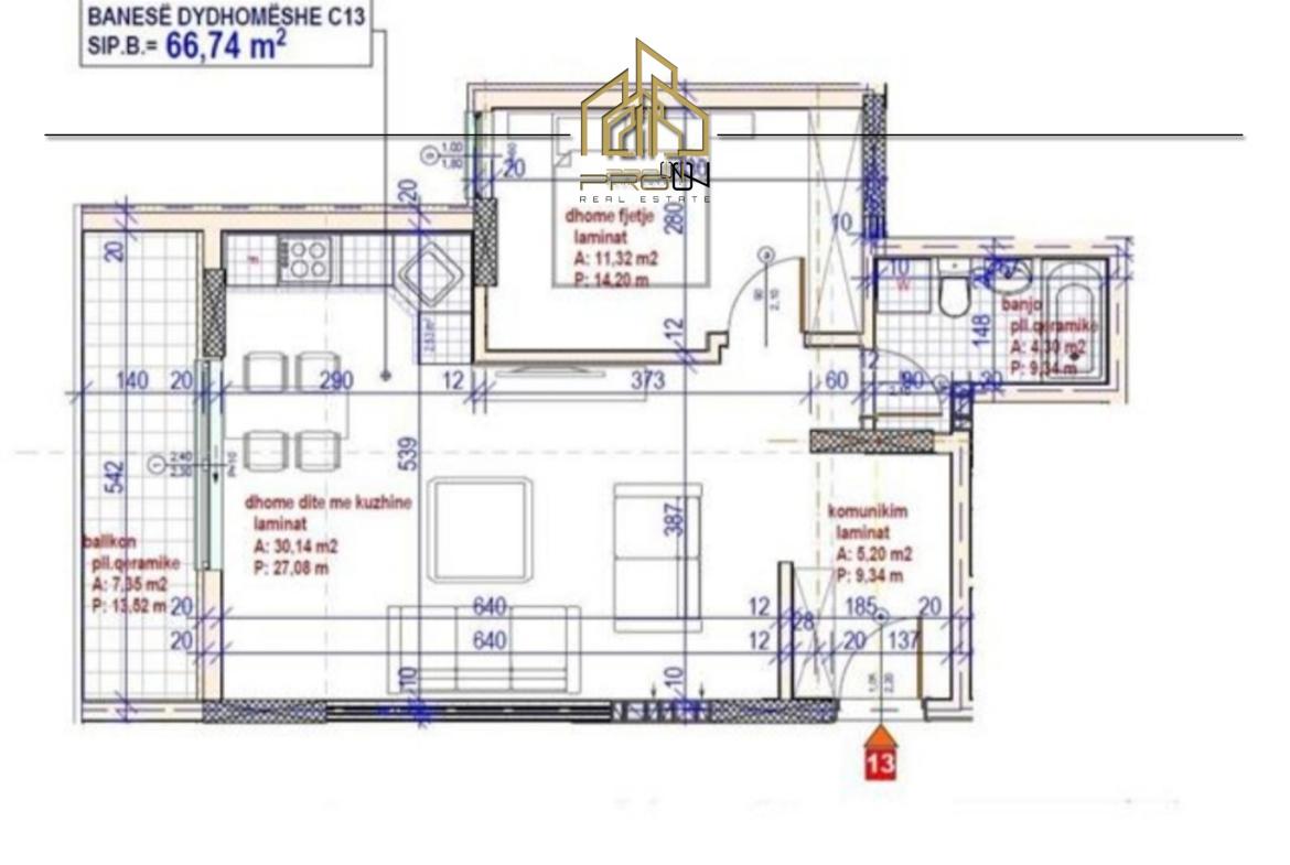
Sipërfaqe 66.74m²
Kati: 6
046 700 002 – 046 700 004
Banesa gjendet në Bresje – Fushë Kosovë – te nënkalimi.
Renditja: sallon-kuzhinë, dhomë gjumi, banjo dhe ballkon.
Për më shumë oferta: https://proon-rks.com/
email: [email protected]
Adresa
-
Qyteti: Fushë Kosovë
-
Shteti/rajoni: Kosovë
Detajet
Updated on 20 Prill, 2026 at 12:42 pm-
ID e pronës ProOn28768
-
Çmimi Me marrëveshje!
-
Madhësia e pronës 66.74 m²
-
Dhoma e gjumit 1
-
Sallon 1
-
Banjo 1
-
Lloji i pronës Banesë
-
Statusi i pronës Në shitje
